21/01/2024
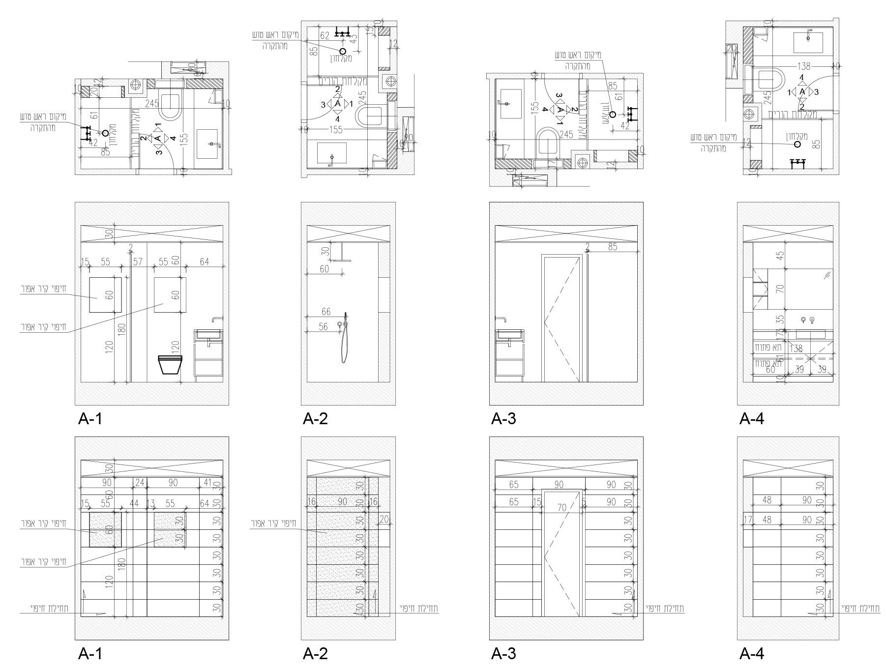
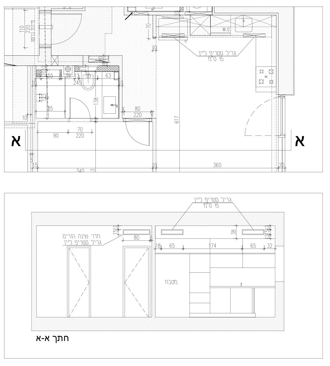
ליווי משפחה שרכשה דירה חדשה מקבלן בהליך שינויי דיירים מול היזם, הכולל: 1. תכנון אופטימלי של הדירה בהתאם לפרוגרמה 2. ליווי ובחירת חומרי הגמר אצל הספקים הנבחרים: * ריצוף, חיפוי וכלים סניטריים אצל ספק כלים סניטריים * תכנון ועיצוב מטבח אצל ספק המטבחים * תכנון ועיצוב אצל ספק השיש * דלתות פנים אצל ספק הדלתות * תכנון אופטימלי של מערכת מיזוג האוויר מול ספק היזם * ליווי מול ספקים חיצוניים במקרים ייחודיים שאינם נמנים ברשימת ספקי היזם 3. הום סטיילינג ובחירת ריהוט ואקססוריז









